
$650,000
1,180
SQ FT
$551
SQ/FT
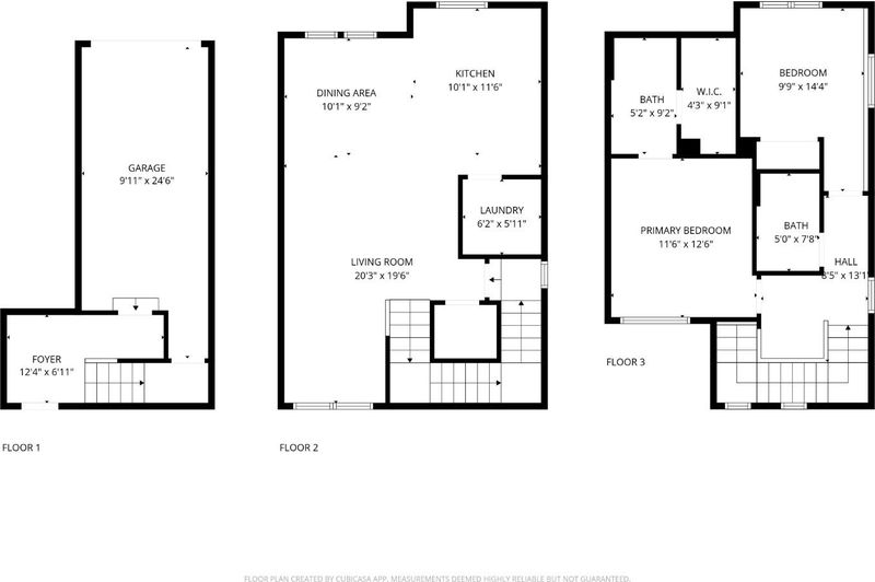
188 Heligan Ln, #1
@ Montage - 4000 - Livermore, Livermore
- 2 Bed
- 2 Bath
- 1 Park
- 1,180 sqft
- LIVERMORE
-
"Take a look! Just like new". Beautifully updated laminate flooring. Close to everything! Immaculate corner unit in the fabulous Montage Community near Las Positas College. Open concept with custom shutters, fresh paint and recessed lighting. Large kitchen with SS appliances, granite counters and a breakfast bar. Flex space for office, exercise equipment, reading nook etc leads to a cozy balcony. Primary bedroom has an ensuite bath and huge walk-in closet. There is an inside laundry room and attached garage. Ample storage throughout. Enjoy the resort-like amenities that Montage has to offer including a swimming pool, spa, clubhouse and fitness center. Close to schools, shopping, hiking trails and easy access to the freeway.
- Days on Market
- 18 days
- Current Status
- Pending
- Sold Price
- Original Price
- $698,000
- List Price
- $650,000
- On Market Date
- Sep 27, 2025
- Contract Date
- Oct 15, 2025
- Close Date
- Nov 7, 2025
- Property Type
- Condominium
- Area
- 4000 - Livermore
- Zip Code
- 94551
- MLS ID
- ML82023111
- APN
- 903-0011-064
- Year Built
- 2010
- Stories in Building
- 3
- Possession
- COE
- COE
- Nov 7, 2025
- Data Source
- MLSL
- Origin MLS System
- MLSListings, Inc.
Squaw Valley Academy Bay Area
Private 9-12
Students: 78 Distance: 0.7mi
Rancho Las Positas Elementary School
Public K-5 Elementary
Students: 599 Distance: 1.3mi
Valley Montessori School
Private K-8 Montessori, Elementary, Coed
Students: 437 Distance: 1.9mi
Marylin Avenue Elementary School
Public K-5 Elementary
Students: 392 Distance: 1.9mi
Lawrence Elementary
Public K-5
Students: 357 Distance: 2.1mi
Granada High School
Public 9-12 Secondary
Students: 2282 Distance: 2.4mi
- Bed
- 2
- Bath
- 2
- Double Sinks, Primary - Stall Shower(s), Shower and Tub
- Parking
- 1
- Attached Garage, Common Parking Area, Gate / Door Opener, Guest / Visitor Parking
- SQ FT
- 1,180
- SQ FT Source
- Unavailable
- Pool Info
- Yes
- Kitchen
- 220 Volt Outlet, Countertop - Solid Surface / Corian, Dishwasher, Garbage Disposal, Microwave, Oven Range - Gas, Refrigerator
- Cooling
- Ceiling Fan, Central AC
- Dining Room
- Dining Area in Living Room
- Disclosures
- NHDS Report
- Family Room
- Other
- Flooring
- Carpet, Laminate, Tile
- Foundation
- Concrete Slab
- Heating
- Central Forced Air
- Laundry
- Electricity Hookup (220V), In Utility Room
- Views
- Neighborhood
- Possession
- COE
- Architectural Style
- Contemporary
- * Fee
- $350
- Name
- Montage Condos
- *Fee includes
- Insurance - Hazard, Maintenance - Common Area, and Sewer
MLS and other Information regarding properties for sale as shown in Theo have been obtained from various sources such as sellers, public records, agents and other third parties. This information may relate to the condition of the property, permitted or unpermitted uses, zoning, square footage, lot size/acreage or other matters affecting value or desirability. Unless otherwise indicated in writing, neither brokers, agents nor Theo have verified, or will verify, such information. If any such information is important to buyer in determining whether to buy, the price to pay or intended use of the property, buyer is urged to conduct their own investigation with qualified professionals, satisfy themselves with respect to that information, and to rely solely on the results of that investigation.
School data provided by GreatSchools. School service boundaries are intended to be used as reference only. To verify enrollment eligibility for a property, contact the school directly.