Sold 3.7% Under Asking
$790,000
1,166
SQ FT
$678
SQ/FT
88 Bush Street, #2103
@ The Alameda - 9 - Central San Jose, San Jose
- 1 Bed
- 2 (1/1) Bath
- 1 Park
- 1,166 sqft
- SAN JOSE
-
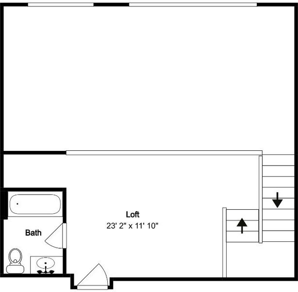
Welcome to this spacious two level loft at Plant 51! The larger of this style floorplan, this unit offers gorgeous exposed brick and steel beam design reminiscent of the old Del Monte warehouse. Beautiful hardwood floors welcome you to the inviting kitchen with ample countertop space and cabinetry with the extended peninsula. The extra space of this unit is felt in the loft bedroom, offering the typical closet area of this floorplan along with space to include the closet pieces. Plant 51 addresses all the needs of downtown living. Community amenities include: large fitness center with cardio equipment, weights and yoga room. Outdoor space is adorned with BBQs, tables, sofas, firepits, water features and lush landscaping. There is also a bicycle kitchen, conference room, community lounge room, and community dog run. This unit also includes bonus storage. Located adjacent to Diridon Station and steps from Cahill Park & The Alameda this community is in a prime location. Ideal for commuting, Diridon offers: VTA, Caltrain, Amtrak and ACE. A stroll to The Alameda and you're at Whole Foods along with numerous restaurants and shops. A few extra steps and you are in the heart of Downtown with SAP Center, San Pedro Square, SJ Convention Center, Center for the Performing Arts and more.
- Days on Market
- 218 days
- Current Status
- Sold
- Sold Price
- $790,000
- Under List Price
- 3.7%
- Original Price
- $849,000
- List Price
- $820,000
- On Market Date
- Apr 8, 2025
- Contract Date
- Oct 20, 2025
- Close Date
- Nov 10, 2025
- Property Type
- Condominium
- Area
- 9 - Central San Jose
- Zip Code
- 95126
- MLS ID
- ML82001499
- APN
- 261-63-025
- Year Built
- 2008
- Stories in Building
- 2
- Possession
- COE
- COE
- Nov 10, 2025
- Data Source
- MLSL
- Origin MLS System
- MLSListings, Inc.
Alternative Private Schooling
Private 1-12 Coed
Students: NA Distance: 0.3mi
St. Leo the Great Catholic School
Private PK-8 Elementary, Religious, Coed
Students: 230 Distance: 0.4mi
Njeri's Morning Glory School and Art Center
Private PK-5 Coed
Students: 20 Distance: 0.4mi
Perseverance Preparatory
Charter 5-8
Students: NA Distance: 0.6mi
Gardner Elementary School
Public K-5 Elementary
Students: 387 Distance: 0.7mi
Herbert Hoover Middle School
Public 6-8 Middle
Students: 1082 Distance: 1.0mi
- Bed
- 1
- Bath
- 2 (1/1)
- Shower over Tub - 1
- Parking
- 1
- Assigned Spaces, Common Parking Area, Electric Car Hookup, Electric Gate, Parking Restrictions, Uncovered Parking
- SQ FT
- 1,166
- SQ FT Source
- Unavailable
- Kitchen
- 220 Volt Outlet, Dishwasher, Microwave, Oven Range - Electric, Refrigerator
- Cooling
- Central AC
- Dining Room
- Dining Area in Living Room
- Disclosures
- NHDS Report
- Family Room
- No Family Room
- Flooring
- Carpet, Hardwood
- Foundation
- Other
- Heating
- Central Forced Air
- Laundry
- Inside, Washer / Dryer
- Possession
- COE
- * Fee
- $776
- Name
- Plant 51 HOA, Seabreeze Management
- *Fee includes
- Common Area Electricity, Common Area Gas, Garbage, Hot Water, Insurance - Common Area, Landscaping / Gardening, Maintenance - Common Area, and Water / Sewer
MLS and other Information regarding properties for sale as shown in Theo have been obtained from various sources such as sellers, public records, agents and other third parties. This information may relate to the condition of the property, permitted or unpermitted uses, zoning, square footage, lot size/acreage or other matters affecting value or desirability. Unless otherwise indicated in writing, neither brokers, agents nor Theo have verified, or will verify, such information. If any such information is important to buyer in determining whether to buy, the price to pay or intended use of the property, buyer is urged to conduct their own investigation with qualified professionals, satisfy themselves with respect to that information, and to rely solely on the results of that investigation.
School data provided by GreatSchools. School service boundaries are intended to be used as reference only. To verify enrollment eligibility for a property, contact the school directly.











































